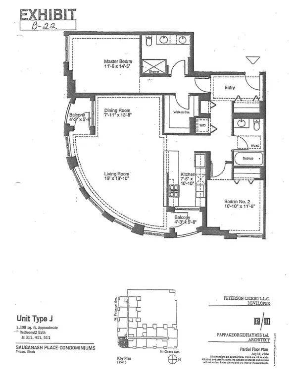
South Sauganash Place Condominiums. The newest offering in the area. This 4th floor elegant unit is located in the turret so you have three exposures. Original owner selling this upgraded unit with all triple pane windows, replaced balcony doors, 42" cherrywood cabinets, granite counters and wood flooring. New stove and microwave 2019, dishwasher 2017, washer/dryer 2017, and disposal 2016. Light and bright unit with high ceilings. Storage locker is on the same floor. Two indoor garage spaces 229 & 230 are included in the price. A convenient location with the Edens Expressway a block away, 2 grammar schools close by, convenience shopping with services within a two block radius. And of course Whole Foods on the ground level for your grocery needs and also prepared meals for takeout. Make an appointment to view soon!! Covid guidelines to be followed when viewing.

Based on information submitted to the MLS GRID as of 4/10/2026 3:02 AM. All data is obtained from various sources and may not have been verified by broker or MLS GRID. Supplied Open House Information is subject to change without notice. All information should be independently reviewed and verified for accuracy. Properties may or may not be listed by the office/agent presenting the information.